Rif: IMMO-122334570
SELVA DI CADORE
BELLUNO
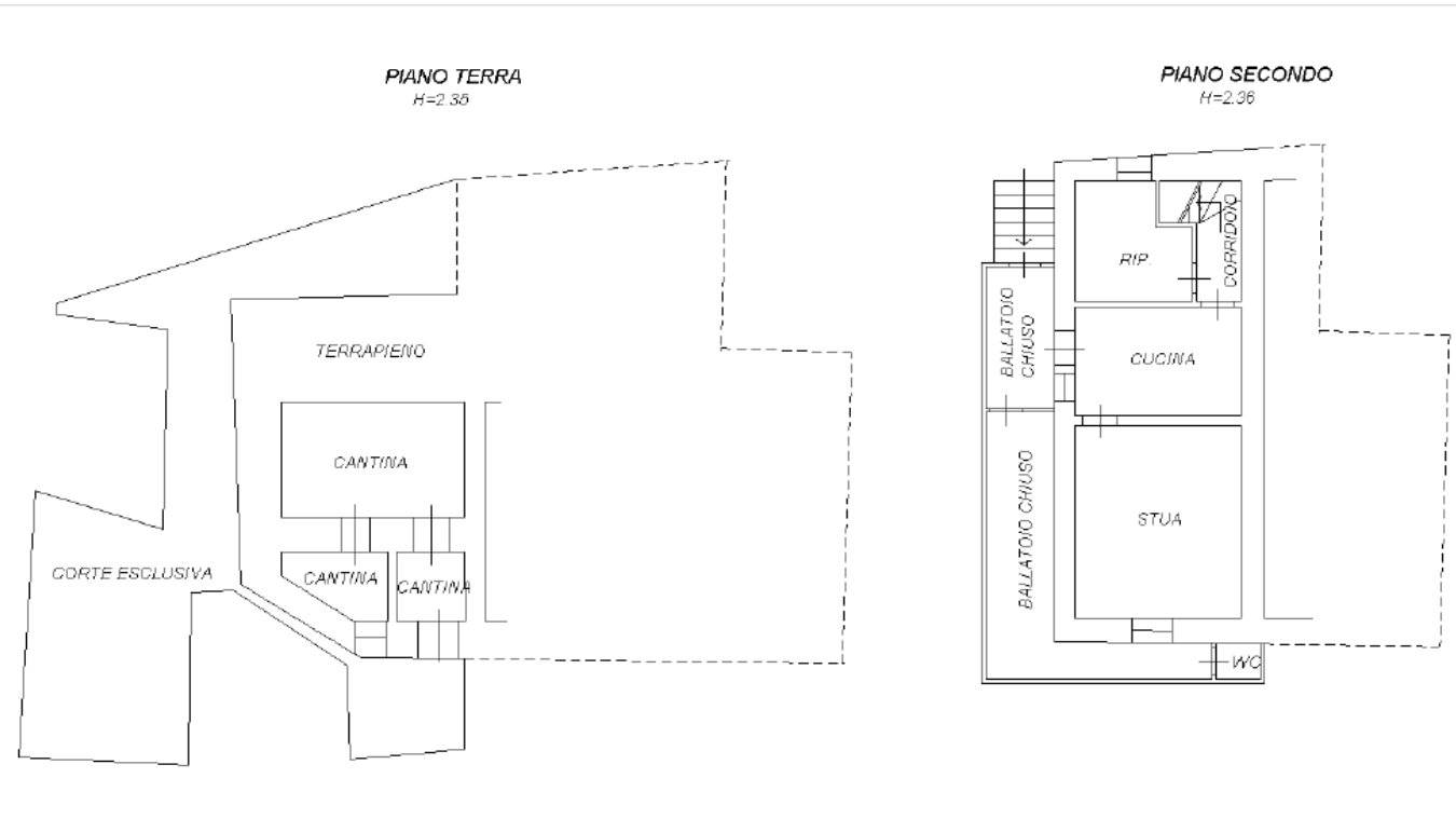
in vendita VECCHIO RUSTICO lungo la strada di collegamento da Caprile alle porte di Selva, tutto da demolire e ristrutturare, adagiato vicino ad un piccolo borgo di case, dispone di un po' di verde, ideale per un recupero mantenendo le caratteristiche locali di un fabbricato di montagna. Una soluzione alternativa è realizzare più unità residenziali. Maggiori dettagli via mail o al 3496602724. Gruppo SINERGIA esperti di immobili residenziali e commerciali
Consistenze
| Descrizione | Superficie | Sup. comm. |
|---|---|---|
| Principali | ||
| Altro - piano terra | 80 Mq | 80 Mqc |
| Totale | 80 Mqc | |

