SINERGIA SRL

CASTELFRANCO: VENDESI VILLA SINGOLA in prox costruzione

Home > Ricerca > Dettaglio immobile
Rif: IMMO-121182486

CASTELFRANCO VENETO

TREVISO
Condividi Linkedin Whatsapp Stampa
Stampa

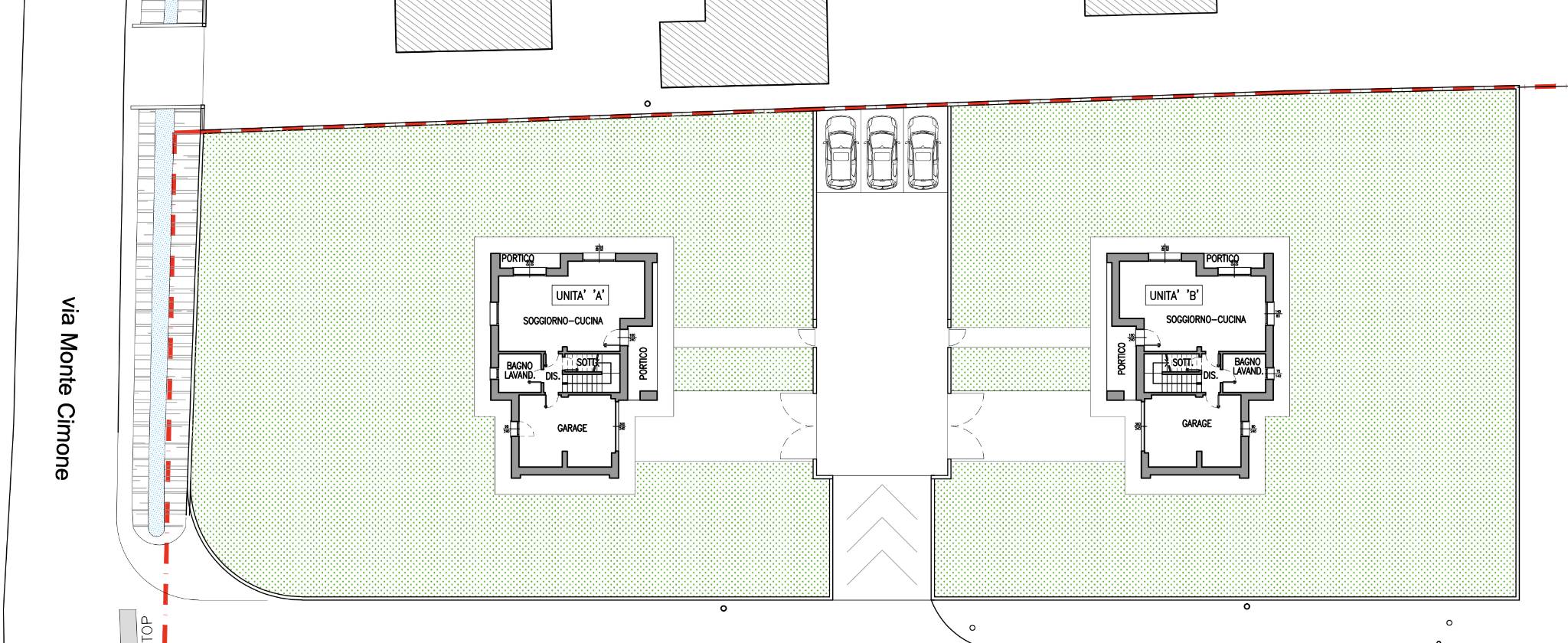
Direzione via Soranza al confine col Comune di San Martino di Lupari, in prossima costruzione si VENDONO DUE VILLE SINGOLE su 1000 mq di terreno privato OGNUNA, dalle metrature importanti, disposte su due piani (terra e primo) ogni confort annesso, includono portico e terrazze belle vivibili, possibile realizzo di piscina e pergola (non comprese sul prezzo), oltre ad essere dotate di impianto fotovoltaico (6kw.) tutto in classificazione energetica A4 (edificio ad energia quasi zero). Le ville nascono con l'obbiettivo di rendere più piacevole abitarci, la posizione al confine tra Castelfranco e San Martino è a 10 minuti d'auto, ugualmente con Castello di Godego e Cittadella. Entrambe sono immerse nel verde della campagna con strada di accesso ai pochi residente. La consegna è prevista in 24 mesi dall'apertura del cantiere. E' possibile prenotare da subito l'immobile sarà riservato in omaggio l'allarme perimetrale. Maggiori dettagli in agenzia.

Consistenze

Descrizione Superficie Sup. comm.
Principali
Immobile - piano terra 85 Mq 85 Mqc
Immobile - 1° piano 85 Mq 85 Mqc
Terrazza - 1° piano 10 Mq 4 Mqc
Terrazza - 1° piano 8 Mq 3 Mqc
Terreno - piano terra 800 Mq 120 Mqc
Altro - piano terra 11 Mq 4 Mqc
Totale 301 Mqc

Planimetrie


Richiedi maggiori informazioni

Autorizzazione al trattamento dei dati personali+
Dichiaro di aver letto l'informativa sulla privacy ed accetto le condizioni d'utilizzo del servizio.
Riempi il campo con il codice riportato nell'immagine*
Codice Captcha
Chiamaci Chiamaci Contattaci